Unterliederbach – Sustainable Living Environment
Städtebaulicher und freiraumplanerischer Ideenwettbewerb zum Grünzug Unterliederbach
Project description
Reason for planning
In December 2018 the City of Frankfurt/Main received an assurance of funds from the “Sustainable Living Environment” support program for an area in Unterliederbach. Through this particular support program, the State of Hessen supports the development of new residential quarters with a social infrastructure. It subsidizes urban development concepts for the pioneering design of residential environments in new urban districts. The funds approved will go towards staging an urban development and open-space ideas competition for the relevant area.
Development area
The development area is in the Unterliederbach district. It completely overlaps the geographical scope of the dormant legal zoning plan no. 825 Unterliederbach Green Corridor. The competition area will be extended to the west and will include Hunsrückstrasse. In total it covers 7.8 hectares.
Planning objective
The ideas competition aims to develop an overall urban development and open-space planning concept for the competition area that outlines perspectives with regard to the construction of educational facilities and additional housing, as well as the creation of a public green corridor. The new, versatile area of greenery will serve as a continuous, spacious green link and form part of bracket connecting the open land spaces to the east of Zeilsheim, from Am Lachgraben to the Liederbach brook. The objective is also to advance the local structure in the competition area through appropriate points of transition to the surrounding buildings.
Project progress
The non-public urban development and open space planning competition for the Unterliederbach green corridor will be staged and completed in 2019:
- June 2019 The competition is announced on the Hessen tender data base.
- August 2019 The competition documents are released to eight participating teams comprising architects and urban planes working with landscape architects.
- October 2019 Competition entries submitted.
- November 2019 Public competition-related civic participation and presentation of the competition results. The jury convenes in Frankfurt/Main (non-public).
- Late November 2019 Exhibition of the entries in the atrium of the Planning Department, Kurt Schumacher Strasse 10, 60311 Frankfurt/ Main.
The draft of legal zoning plan no. 930 Unterliederbach Education Campus will subsequently be drawn up on the basis of the competition results.
Information on the project published by the City Planning Department
More information
Public civic participation
A public civic participation event will be held even before the prize-giving ceremony for the winning entries in the urban development and open-space ideas competition for the “Unterliederbach green corridor” during the jury session. During the event we will inform you about current developments and present the contents and results of the competition. Advice and suggestions will be discussed and taken on board.
The competition is the first element in the planning of the design. Based on this future development of the competition area, as part of the process an early public participation event with regard to legal zoning plan no. 930 - Unterliederbach Education Campus will be held.
All interested parties are cordially invited:
Monday, November 11, 2019 at 6:00p.m. (doors open at 5:30 p.m.) Saalbau Stadthalle Zeilsheim, Clubraum 5 Bechtenwaldstrasse 17, 65931 Frankfurt/Main
Competition result
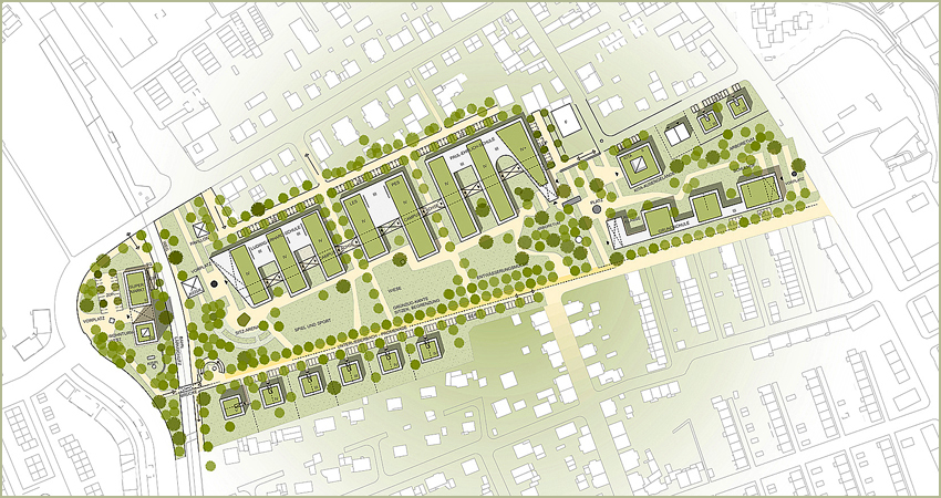
The winners of the “Unterliederbach Green Corridor” urban development and open space planning ideas competition have been announced. Working with landscape planners, eight architecture/urban planning firms drew up and submitted concepts for the competition. Chaired by Torsten Becker, the jury convened on November 12, 2019. When judging the concepts submitted it placed particular importance on the campus being easily linked with its surroundings, on good public transport connections, and on sound ecological and climatic conditions. The winning entry forms the basis of legal zoning plan procedure no.930 – Unterliederbach Education Campus – which ahs now been initiated.
The jury voted unanimously in favor of the entry submitted by AG5 Architekten + Stadtplaner PartGmbB in Darmstadt in collaboration with Götte Landschaftsarchitekten GmbH in Frankfurt/Main. Second prize went to JJH Architektengesellschaft mbH Jens Jakob Happ in Frankfurt/Main working with HKK Landschaftsarchitektur. Drei Eins Stadt Freiraum Architektur Berghof Baltabol Faller PartG mbB Architektur und Landschaftsarchitektur in Frankfurt/ Main were highly commended.
1st prize
Authors
AG 5 Architekten + Stadtplaner PartGmbB, Darmstadt
Authors: Joachim Klie, Martin Schaper / Mitarbeiter: Christoph Kornmayer, Andres Krause, Jochen Silbermann
Götte Landschaftsarchitekten GmbH, Frankfurt
Excerpt from the jury’s verdict
“The planners propose a traffic-free, green park, which takes the form of a structured green corridor from the Liederbach brook in the east to the farmland on the western outskirts, and from north to south is easily integrated with its surroundings by means of comb structures and open construction.
The spatial structures proposed respond appropriately to the location and its different neighborhoods. Together they play a pivotal role in the creation of the quarter’s unique character.
The existing access structures are incorporated, and advanced, and existing neighborhoods very well linked with the new quarter. The connecting of the land on the east and west of the railroad tracks by means of a bridge that blends in well also deserves praise. Giving the new public facilities a clear identity and integrating them meaningfully in the surroundings is a particular strength of the concept. (…) All in all, the design provides a highly valuable and convincing solution to the assignment. Its great strength is the clear manner in which it deals with the space, one which lends it an identity, as well as the creation of a spacious green corridor that is attractive both for the public facilities and citizens”.