Unterliederbach - Nachhaltiges Wohnumfeld
Städtebaulicher und freiraumplanerischer Ideenwettbewerb zum Grünzug Unterliederbach
Projektbeschreibung
Planungsanlass
Im Dezember 2018 erhielt die Stadt Frankfurt für ein Gebiet in Unterliederbach eine Zusage für das Förderprogramm „Nachhaltiges Wohnumfeld". Das Land Hessen unterstützt mit diesem Förderprogramm die Entwicklung neuer Wohnquartiere mit sozialer Infrastruktur. Gefördert werden städtebauliche Konzepte für eine zukunftsweisende Wohnumfeldgestaltung in neuen Stadtquartieren. Mit den bewilligten Fördermitteln wird für das Fördergebiet ein städtebaulicher und freiraumplanerischer Ideenwettbewerb durchgeführt.
Planungsgebiet
Das Wettbewerbsgebiet liegt im Stadtteil Unterliederbach. Es überlagert vollflächig den Geltungsbereich des ruhenden Bebauungsplanverfahrens Nr. 825 - Grünzug Unterliederbach. Erweitert wird das Wettbewerbsgebiet nach Westen inklusive der Hunsrückstraße. Der Bereich umfasst insgesamt 7,8 ha.
Planungsziel
Für das Wettbewerbsgebiet soll im Rahmen des Ideenwettbewerbs ein städtebaulich-freiraumplanerisches Gesamtkonzept entwickelt werden, das Perspektiven für den Bau von Bildungseinrichtungen, für ergänzende Wohnbebauungen sowie die Schaffung eines öffentlichen Grünzugs aufzeigt. Die neue, vielseitig nutzbare Grünfläche soll als durchgängige großzügige Grünverbindung langfristig ein Teilelement der Verbindung zwischen den Freiflächen östlich von Zeilsheim vom Lachgraben bis zum Liederbach sein. Ziel ist auch, die Ortsstruktur im Bereich des Wettbewerbsgebietes mit angemessenen Übergängen zur umgebenden Bebauung weiterzuentwickeln.
Projektverlauf
Der nicht offene, städtebauliche und freiraumplanerische Ideenwettbewerb zum Grünzug Unterliederbach wird 2019 durchgeführt und abgeschlossen:
- Juni 2019
Das Wettbewerbsverfahren wird auf der Hessischen Ausschreibungsdatenbank bekannt gemacht. - August 2019
Die Wettbewerbsunterlagen werden an 8 Teilnehmerteams - bestehend aus Architekten/Stadtplanern in Zusammenarbeit mit Landschaftsarchitekten - ausgegeben. - Oktober 2019
Abgabe der Wettbewerbsarbeiten. - November 2019
Öffentliche Bürgerbeteiligung zum Wettbewerb mit Vorstellung der Wettbewerbsergebnisse.
Das Preisgericht tagt in Frankfurt am Main (nicht öffentlich). - Ende November 2019
Ausstellung der Arbeiten im Atrium des Planungsdezernats, Kurt-Schumacher-Straße 10, 60311 Frankfurt am Main.
Im Anschluss soll der Bebauungsplanentwurf Nr. 930 - Bildungscampus Unterliederbach - auf Grundlage der Wettbewerbsergebnisse erarbeitet werden.
Publikationen des Stadtplanungsamtes zum Projekt
Mehr Informationen
Öffentliche Bürgerbeteiligung
Am 11.11.2019 fand eine Bürgerveranstaltung zum städtebaulichen und freiraumplanerischen Ideenwettbewerb zum „Grünzug Unterliederbach" in der Stadthalle Zeilsheim statt. Hier wurden erstmalig einen Tag vor der Preisgerichtssitzung die anonymen Wettbewerbsentwürfe präsentiert. Im Rahmen der Veranstaltung fand auch die gesetzlich vorgeschriebene frühzeitige Beteiligung der Öffentlichkeit zum Bebauungsplanverfahren Nr. 930 - Bildungscampus Unterliederbach - statt. Es gab Gelegenheit Fragen zu stellen sowie Ideen, Hinweise und Anregungen zu den Entwürfen und zu dem in Aufstellung befindlichen Bebauungsplan zu geben.
Wettbewerbsergebnis
Der städtebauliche, freiraumplanerische Ideenwettbewerb zum „Grünzug Unterliederbach“ wurde entschieden. Acht Architektur-/Stadtplanungsbüros in Zusammenarbeit mit Landschaftsplanern haben Gesamtkonzepte im Rahmen des Ideenwettbewerbs erarbeitet und abgegeben. Am 12.11.2019 tagte das Preisgericht unter dem Vorsitz von Torsten Becker. Bei der Beurteilung der Konzepte wurde besonders Wert auf eine gute Vernetzung des Campus mit seiner Umgebung, auf eine gute ÖPNV -Anbindung sowie gute ökologische und klimatische Bedingungen gelegt. Der Siegerentwurf bildet die Grundlage für das eingeleitete Bebauungsplanverfahren Nr. 930 – Bildungscampus Unterliederbach.
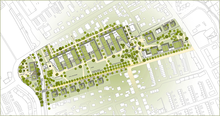
Das Preisgericht stimmte einstimmig für den Entwurf des Büros AG 5 Architekten + Stadtplaner PartGmbB aus Darmstadt in Zusammenarbeit mit Götte Landschaftsarchitekten GmbH aus Frankfurt am Main. Der zweite Preis ging an JJH Architektengesellschaft mbH Jens Jakob Happ aus Frankfurt am Main mit HKK Landschaftsarchitektur. Eine Anerkennung erhielten Drei Eins Stadt Freiraum Architektur Berghof Baltabol Faller PartG mbB Architektur und Landschaftsarchitektur aus Frankfurt am Main.
1. Preis
Verfasser
AG 5 Architekten + Stadtplaner PartGmbB, Darmstadt
Verfasser: Joachim Klie, Martin Schaper / Mitarbeiter: Christoph Kornmayer, Andres Krause, Jochen Silbermann
Götte Landschaftsarchitekten GmbH, Frankfurt
Auszug aus der Beurteilung des Preisgerichts
„Die Verfasser schlagen einen verkehrsfreien, grünen Quartierspark vor, der sich als maßstäblich gegliederter Grünzug vom Liederbach im Osten bis zu den landwirtschaftlichen Flächen am westlichen Ortsrand entwickelt, und in Nord-Süd-Richtung über Kammstrukturen bzw. eine offene Bauweise gut mit der Umgebung vernetzt werden kann.
Die vorgeschlagenen Raumstrukturen reagieren angemessen auf den Ort und seine unterschiedlichen Nachbarschaften. Sie tragen im Zusammenwirken entscheidend zu einem eigenständigen Quartierscharakter bei.
Die vorhandenen Erschließungsstrukturen werden aufgenommen und weiterentwickelt, bestehende Nachbarschaften mit dem neuen Quartier sehr gut vernetzt. Gewürdigt wird auch die Verknüpfung des Geländes östlich und westlich der Bahn über eine schlüssig angeordnete Brücke. Eine besondere Stärke des Entwurfs besteht darin, den neuen öffentlichen Einrichtungen eine klare Adresse zu geben und diese in die Umgebung sinnvoll einzuordnen. (…) Insgesamt wird der Entwurf als sehr wertvoller und überzeugender Beitrag zur Lösung der gestellten Aufgabe gesehen. Seine große Stärke liegt einerseits im klaren und identitätsstiftenden Umgang mit dem Raumprogramm, in der Schaffung eines großzügigen sowohl für die öffentlichen Einrichtungen wie für Bürgerinnen und Bürger attraktiven Grünzugs.“
