Types of legal zoning Plan
Which stipulations can be made in a legal zoning plan is determined throughout Germany by section 9 of the German Building Code. Depending on the content of the regulations, (the number of stipulations) there are different types of legal zoning plan.
Qualified legal zoning plan
A qualified legal zoning plan in accordance with section 30 (1) BauGB contains at least stipulations referring to
- the type and dimensions of the built use,
- the areas of land which can be built on
- the local traffic areas.
Further stipulations can also be made.
Simple Legal Zoning Plan
As opposed to a qualified legal zoning plan, a simple legal zoning plan in accordance with section 30 (3) (BauGB) does not contain all the minimum stipulations mentioned above. The building line plans compiled in Frankfurt/Main from the late 19th century to the 1960s are simple legal zoning plans. They were formally laid down on the basis of the Prussian Alignment Act and the Hessen Building Act and adopted as simple legal zoning plans when the Federal Building Act came into power in 1960. They only contain road alignments and building alignments. These plans do not provide any written stipulations or any grounds. The legitimacy of projects in the area of validity of a simple legal zoning plan is based on section 34 or 35 (BauGB).
Project-related legal zoning plan
The concept of the project-related legal zoning plan was created as an instrument for the swift realization of building projects. In accordance with section 12 (BauGB), it consists of an investor’s project and development plan, the municipality’s by-law, and an implementation contract.
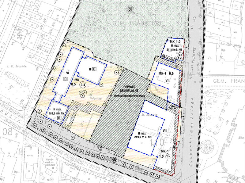
Section of a project-related legal zoning plan, legal zoning plan no. 837Ä “Bockenheimer Landstrasse / Rothschildpark – 1st simplified amendment", © Frankfurt/Main City Planning Dept.
Ausschnitt vorhabenbezogener Bebauungsplan, Bebauungsplan Nr. 837Ä "Bockenheimer Landstraße / Rothschildpark - 1. vereinfachte Änderung", © Stadtplanungsamt Frankfurt am MainThe project developer must file an application for the initiation of a project-related legal zoning plan procedure. The project developer must be prepared, and in a position to implement the project and the development measures.
The municipality must make a decision about the application, weighing up public and private interests. The municipality must be at liberty to make any decision it sees fit with regard to the plan. The procedure follows the same course as that for a legal zoning plan.
The project developer and the municipality conclude an implementation contract in which further details are clarified. In particular the investor pledges in the implementation contract to develop and realize the project, or have it realized, within a specified period of time, and to cover the planning and development costs in part or in full.
In the event that the schedule is not adhered to, the municipality must revoke the project-related legal zoning plan. Any change in the project developer requires the approval of the municipality.